This is a carousel with a large image above a track of thumbnail images. Select items from the thumbnail track or use the carousel controls on either side of the large image to navigate through the different images.
Lot 0180 14930 Macadamia Ln | New Homes for Sale in Jacksonville, FL
Est. Completion:Move-in Ready!
Single Family Home
$364,990
Move-in Ready!
- 
						2,395 sq ft 
- 
						4 beds 
- 
						3 baths 
- 
						2 floors 
- 
						2 bays 
Sales Office Hours
Monday 10:00 AM - 06:00 PM
Tuesday 10:00 AM - 06:00 PM
Wednesday 10:00 AM - 06:00 PM
Thursday 10:00 AM - 06:00 PM
Friday 12:00 PM - 06:00 PM
Saturday 10:00 AM - 06:00 PM
Sunday 12:00 PM - 06:00 PM
Overview
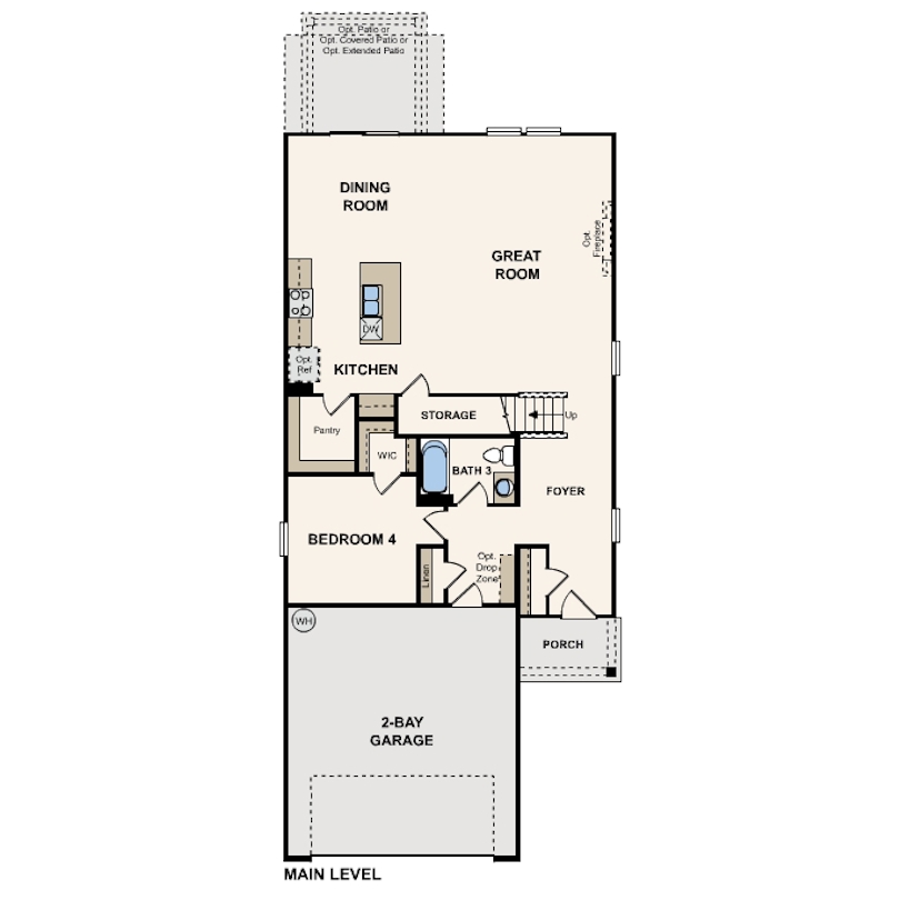
This two-story Santa Rosa boasts an inviting open kitchen with a spacious pantry, a dining room, and a cozy great room complete with an optional fireplace. Guest suite on main level with guest hall bath. Moving upstairs, you'll find an open loft area, a full bath, and three secondary bedrooms, each with a walk-in closet. Primary suite on main level with large spa shower, double vanities and large walk-in closet. There's also a convenient laundry room.
Floor Plan
Explore homesites at this community!
Get a feel for the neighborhood and find the right homesite for you.
Community Information
Conveniently situated near I-95 and located only minutes from the Jacksonville International Airport, The Landings at Pecan Park is a welcome addition to the River City Marketplace. This prime location allows easy access to employment and cultural centers throughout the Jacksonville area and is an easy drive to the Jacksonville Zoo and Gardens, Little Talbot Island State Park, and more. Known for its pristine beaches, drive your car onto Huguenot Park 20 minutes away, visit Fernandina Beach 25 minutes to the north in Amelia Island, or Jacksonville Beach is only 25 minutes to the south. As one of the best home builders in Jacksonville, Century Communities is proud to offer an inspired selection of attached and single-family homes—boasting contemporary open-concept layouts and desirable included features. Explore these beautiful new build homes in Jacksonville, FL and start your dream home journey at The Landings at Pecan Park today!
Community Amenities
Enjoy the walking trail, dog park, and playground within the community while being close to the city's best shopping and attractions:
River City Marketplace Shopping..... 2 miles
Jacksonville Zoo and Gardens..... 8 miles
Brentwood Golf Course..... 11 miles
Huguenot Memorial Park..... 20 miles
Fernandina Beach..... 22 miles
Atlantic Beach..... 23 miles
Jacksonville Beach..... 26 miles
Shopping and Dining
- 
										River City MarketplaceJacksonville, FLThis large shopping complex has hundreds of large brand name stores and restaurants.
- 
										UF Health NorthJacksonville, FL
- 
										Publix GroceryJacksonville, FL
- 
										Lowe'sJacksonville, FL
- 
										Best BuyJacksonville, FL
- 
										LongHorn SteakhouseJacksonville, FL
- 
										Buffalo Wild WingsJacksonville, FL
- 
										BJ's Restaurant & BrewhouseJacksonville, FL
- 
										StarbucksJacksonville, FL
- 
										Olive Garden Italian RestaurantJacksonville, FL

 
             
             
                                     
                                     
                                     
                    