This is a carousel with a large image above a track of thumbnail images. Select items from the thumbnail track or use the carousel controls on either side of the large image to navigate through the different images.
Lot 020101 13122 Leisure Cove Dr. | New Homes for Sale in Texas City, TX
Est. Completion:Move-in Ready!
Single Family Home
$299,900
Move-in Ready!
- 
						1,614 sq ft 
- 
						3 beds 
- 
						2 baths 
- 
						1 floor 
- 
						2 bays 
Sales Office Hours
Overview
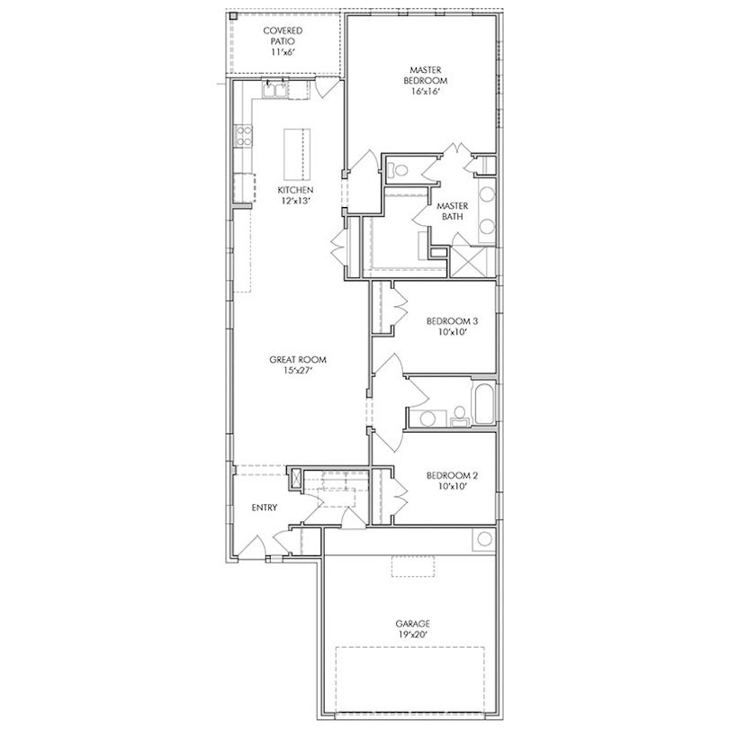
The Paisley is a 1-story new house design with 3 bedrooms and 2 full bathrooms. This floor plan features an open and central great room, a kitchen that includes an island with a serving bar, dual sinks and a large walk-in closet in the owners retreat, a walk-in utility room with easy garage access, a rear covered patio, and an attached 2-car garage.
Explore homesites at this community!
Get a feel for the neighborhood and find the right homesite for you.
Community Information
Discover new homes at Lago Mar by Century Communities in Texas City, Texas. Lago Mar is a prime location for easy access to a variety of recreation, entertainment, and employment hotspots. Lago Mar’s clubhouse offers many amenities, including a resort-style pool, fitness center, catering kitchen, and new Crystal Clear Lagoon. The Lagoon features 12-acres mirroring the beauty of the Caribbean with a white sand beach, and crystal clear sparkling blue water. Residents can enjoy their own staycation as they lounge within the shore or enjoy paddleboarding and kayaking from the floating dock.
Community Amenities
- Crystal Clear Lagoon
- Resort-style pool
- Fitness Center
- Catering kitchen
- Parks & Playgrounds
Shopping and Dining
- 
										Tanger OutletsTexas City, TX 77591
- 
										Kroger MarketplaceTexas City, TX 77590
- 
										Rue 21Texas City, TX 77591
- 
										Gulfway PlazaLa Marque, TX 77568
- 
										Sam's ClubLa Marque, TX 77568
- 
										Walmart SupercenterLa Marque, TX 77568
- 
										TargetDickinson, TX 77539
- 
										Beyond BurgerTexas City, TX 77591
- 
										Olive Garden Italian RestaurantTexas City, TX 77591
- 
										Gringo's Tex-MexTexas City, TX 77591
- 
										Luna's Mexican RestaurantTexas City, TX 77591
- 
										WingstopLa Marque, TX 77568
- 
										Best WokLa Marque, TX 77568

 
             
             
             
             
             
             
             
             
             
             
             
             
             
             
             
             
             
             
             
             
             
             
                                     
                    